封闭式绝对线性标尺 ABS AT135□ 产品概要书
1.产品图片
《 ABS AT135□ -H 高精度规格 》
《 ABS AT135□ -S 高刚性规格 》
2. 特点
2.1 抗油污性及表面耐划伤,高精度・高分辨率ABS AT标尺
■实现了对于现有ABS AT500系列升级换代(安装作业兼容互换)
■同时提供高精度规格(H系列)以及高刚性规格(S系列),满足不同客户群体的需求
2.2 发那科株式会社 高速串行接口的对应
《型号》
ABS AT135 | 3 - | 700 - | H |
串行接口规格 | 分辨力 | 有效长度 | 标尺本体规格 |
《适用系统》
适用系统 | 标尺符号 |
发那科株式会社 αi高速串行接口 | ABS AT135□ (□:分辨力) |
3. 构成及其规格
本产品的结构如下图所示。
《 H系列(高精度规格)》
特点)3点固定(~500mm) or 5点固定(600mm~)
⇒外部框架非铝制
⇒温度特性优越(原点定位的稳定性)
适用于车床和电火花加工机
《 S系列(高刚性规格)》
特点)金属固定
⇒外部装载铝合金框架(高刚性化)
⇒耐振动性 / 耐冲击性 :20G / 35G
适用于磨床和加工中心等设备
3.2 主要规格
项目 | 高精度规格 | 高刚性规格 |
H系列 | S系列 | |
标尺本体的安装规格 | 3 or 5点 弹性固定 | 多点弹性固定 |
温度变化的伸缩基准点位 | 有效长度的中央 | |
ABS 原点位置(输出数据0位) | 有效长度的中央 | |
有效长度(mm) | 100,150,200,250,300,350,400,450,500,600,700,750,800,900,1000(15 种) | 100,200,300,400,500,600,700,800,900,1000,1100,1200,1300,1400,1500,1600,1800,2000,2200(19 种) |
检出方式 | 光电式ABS 线性编码器 | |
输入输出方式 | 高速串行信号 | |
标尺栅距(μm) | 10/10 | |
信号周期(μm) | 20 | |
分辨力(μm) | 0.001 / 0.01 / 0.05 | |
最大相应速度(m/min) | 180 | |
指示精度(μm)20℃ | 2+2L0/ 1000 | 3+3L0/ 1000 |
热膨胀系数 | ≈8 ×10-6 / K | |
耐振动性(55~2000Hz) | ≦147 m/s2 | ≦196 m/s2 |
耐冲击性(1/2sin 、 11ms) | ≦196 m/s2 | ≦343 m/s2 |
供给电源电压/消耗电流 | DC5 V ± 10%/270 mA Max | |
信号电缆长度 | 可至29 m(信号电缆+反馈电缆) | |
使用/保存温度 ・ 湿度范围 | 0~50℃/-20~70℃、20~80%(非结露) | |
串行接口 | 发那科株式会社α i 高速串行接口 | |
3.3 ABS 原点位置和读数方向
3.4 信号电缆构成
信号电缆构成如下图所示。
电缆接续方向(取出方向),读数器左右两端皆可。此外因为信号电缆需要另售
所以需要确认输出连接器规格以及电缆长度。
《选择内容》
项目 | 规格 |
电缆长度 | 1 m ~ 9 m (每1 m 递增)、12m |
电缆材料 | PVC 套管(φ 6.5 mm)、高弯曲性规格(无金属套管) |
输出接口 | ① 散线规格 |
注)信号电缆和反馈电缆(客户自行配置)的合计总长,需要控制在最长29 m 以下
《接续例1》
※ 关于接口A 部分,烦请客户自行配置制作。
引脚(信号电缆/散线规格)
线色 | 信号 | 线色 | 信号 |
褐色 | DT | 白色 | +5V |
红色 | /DT | 黑色 | GND |
橙色 | RQDT | 屏蔽线 | F.G |
黄色 | /RQDT |
《接续例2》
※ 反馈线缆和接口A 部分,烦请客户自行配置制作。
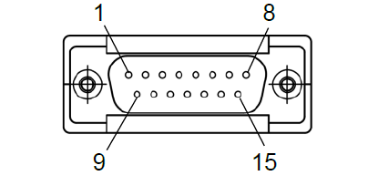
引脚(信号电缆/D-Sub规格)
引脚 | 信号名 | 引脚 | 信号名 |
1、2、13 | GND | 7 | RQDT |
3、4、11 | +5V | 8 | /RQDT |
5 | DT | 15 | F.G |
6 | /DT |
接口:D-Sub15 针(♂ )
适用接口:HDAB-15S
(广濑或者相当品)
《接续例3》
引脚(发那科接口规格(FI20))
引脚 | 信号名 | 引脚 | 信号名 |
1 | SD | 14,16 | GND |
2 | /SD | 18,20 | +5V |
5 | RQ(REQ) | 3,4,7~13 | 未使用 |
6 | /RQ(/REQ) |
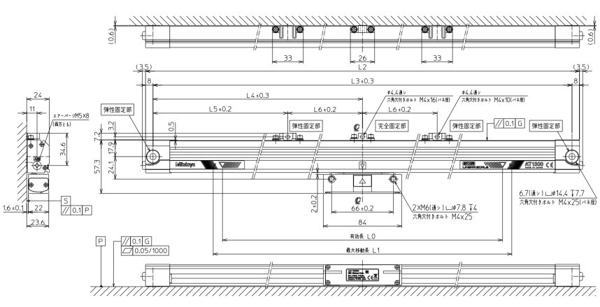
4.安装图纸以及尺寸表
4.1 安装尺寸图(H 系列)

注記
1. G:表示安装主导轨。
2. P:标尺本体安装作业面。
S:读数头安装作业面。
3. 关于图中尺寸L0~L6、烦请参考4.2 尺寸表(H 系列)。
4.2尺寸表(H系列)
货号 | 型号 | 有效长 | 最大移动量 | 全长 | 安装 | L4 | L5 | L6 |
559-524-5□ | AT135□-100-H | 100 | 120 | 265 | 249 | 124.5 | ||
559-525-5□ | AT135□-150-H | 150 | 170 | 315 | 299 | 149.5 | ||
559-526-5□ | AT135□-200-H | 200 | 220 | 365 | 349 | 174.5 | ||
559-527-5□ | AT135□-250-H | 250 | 270 | 415 | 399 | 199.5 | ||
559-528-5□ | AT135□-300-H | 300 | 320 | 465 | 449 | 224.5 | ||
559-529-5□ | AT135□-350-H | 350 | 370 | 515 | 499 | 249.5 | ||
559-530-5□ | AT135□-400-H | 400 | 420 | 565 | 549 | 274.5 | ||
559-531-5□ | AT135□-450-H | 450 | 470 | 615 | 599 | 299.5 | ||
559-532-5□ | AT135□-500-H | 500 | 520 | 665 | 649 | 324.5 | ||
559-533-5□ | AT135□-600-H | 600 | 620 | 765 | 749 | (374.5) | 204.5 | 170 |
559-534-5□ | AT135□-700-H | 700 | 720 | 865 | 849 | (424.5) | 224.5 | 200 |
559-535-5□ | AT135□-750-H | 750 | 770 | 915 | 899 | (499.5) | 224.5 | 225 |
559-536-5□ | AT135□-800-H | 800 | 820 | 965 | 949 | (474.5) | 244.5 | 230 |
559-537-5□ | AT135□-900-H | 900 | 920 | 1065 | 1049 | (524.5) | 264.5 | 260 |
559-538-5□ | AT135□-1000-H | 1000 | 1020 | 1165 | 1149 | (574.5) | 284.5 | 290 |
※货号□标记,内容如下。
分辨力50nm : 3
分辨力10nm : 4
分辨力 1nm : 7
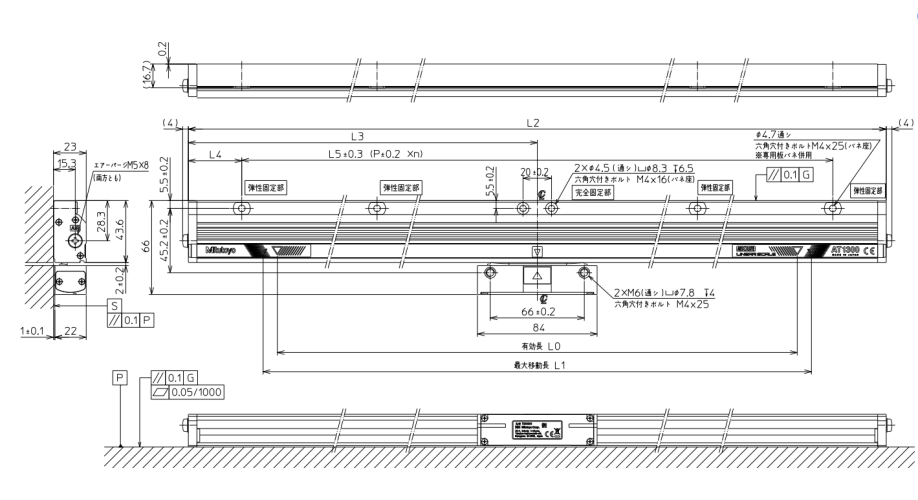
4.3 安装尺寸图(S 系列)
注記
1. G:表示安装主导轨。
2. P:标尺本体安装作业面。
S:读数头安装作业面。
3 关于图中尺寸L0~L5、P 以及n,烦请参考4.4 尺寸表(S 系列)。
4.4尺寸表(S系列)
【Unit:mm】
货号 | 型号 | 有效长 | 最大移动量 | 全长 | L3 | L4 | L5 | P | n |
559-500-5□ | AT135□-100-S | 100 | 120 | 225 | 112.5 | 37.5 | 150 | 75 | 2 |
559-502-5□ | AT135□-200-S | 200 | 220 | 325 | 162.5 | 37.5 | 250 | 125 | 2 |
559-504-5□ | AT135□-300-S | 300 | 320 | 425 | 212.5 | 37.5 | 350 | 175 | 2 |
559-506-5□ | AT135□-400-S | 400 | 420 | 525 | 262.5 | 62.5 | 400 | 200 | 2 |
559-508-5□ | AT135□-500-S | 500 | 520 | 625 | 312.5 | 62.5 | 500 | 125 | 4 |
559-509-5□ | AT135□-600-S | 600 | 620 | 725 | 362.5 | 62.5 | 600 | 150 | 4 |
559-510-5□ | AT135□-700-S | 700 | 720 | 825 | 412.5 | 62.5 | 700 | 175 | 4 |
559-512-5□ | AT135□-800-S | 800 | 820 | 925 | 462.5 | 62.5 | 800 | 200 | 4 |
559-513-5□ | AT135□-900-S | 900 | 920 | 1025 | 512.5 | 62.5 | 900 | 150 | 6 |
559-514-5□ | AT135□-1000-S | 1000 | 1020 | 1125 | 562.5 | 37.5 | 1050 | 175 | 6 |
559-515-5□ | AT135□-1100-S | 1100 | 1120 | 1225 | 612.5 | 87.5 | 1050 | 175 | 6 |
559-516-5□ | AT135□-1200-S | 1200 | 1220 | 1325 | 662.5 | 62.5 | 1200 | 200 | 6 |
559-517-5□ | AT135□-1300-S | 1300 | 1320 | 1425 | 712.5 | 112.5 | 1200 | 150 | 8 |
559-518-5□ | AT135□-1400-S | 1400 | 1420 | 1525 | 762.5 | 62.5 | 1400 | 175 | 8 |
559-519-5□ | AT135□-1500-S | 1500 | 1520 | 1625 | 812.5 | 112.5 | 1400 | 175 | 8 |
559-520-5□ | AT135□-1600-S | 1600 | 1620 | 1725 | 862.5 | 62.5 | 1600 | 200 | 8 |
559-521-5□ | AT135□-1800-S | 1800 | 1820 | 1925 | 962.5 | 87.5 | 1750 | 175 | 10 |
559-522-5□ | AT135□-2000-S | 2000 | 2020 | 2125 | 1062.5 | 62.5 | 2000 | 200 | 10 |
559-523-5□ | AT135□-2200-S | 2200 | 2220 | 2325 | 1162.5 | 112.5 | 2100 | 175 | 12 |
※货号□标记,内容如下。
分辨力50nm : 3
分辨力10nm : 4
分辨力 1nm : 7
网站客服咨询客服
热线电话:
13962107506
