Heidenhain光栅尺LC195型号LC195F/LC195M/LC195S
海德汉公司用于数控机床的直线光栅尺几 乎可以适应任何应用。它是所有进给轴为 伺服控制环控制的机器和设备的选 择,例如铣床、加工中心、镗床、车床和 磨床。直线光栅尺的动态性能优点,允许 的运动速度高,沿测量方向的加速性能使 其不仅能满足常规轴高动态性能要求,也 能满足直接驱动电机的高动态性能要求。
HEIDENHAIN也提供其它应用所需的直线 光栅尺,例如
• 手动操作机床
• 冲压机和弯板机
• 自动化生产设备
标准外壳jue对式直线光栅尺
• 抗振性能好
• 允许水平安装
• 双密封条设计,高可靠性
• 尺寸同LC 115/LC 185/LC 195
Heidenhain光栅尺LC195型号LC195F/LC195M/LC195S主要特点:
直线光栅尺测量直线轴位置过程期间没有 任何其它机械传动件。用直线光栅尺的位 置控制环中包括全部进给机构。机械运动 误差被滑板中的直线光栅尺检测和被控制 系统电路修正。因此它能消除潜在多项误 差源。
• 滚珠丝杠温度特性导致的定位误差
• 反向误差
• 滚珠丝杠螺距误差导致的运动特性误差
因此,直线光栅尺是高精度定位和高速加 工机床不可或缺的基础技术手段。
机械结构 用于数控机床的直线光栅尺为封闭式结 构:铝壳保护光栅尺、读数头和导轨,避 免灰尘、切屑和切削液进入。自动向下压 的弹性密封条保持外壳密封。
读数头沿光栅尺的小摩擦力导轨运动。连 接器将读数头与安装块连接在一起并补偿 光栅尺与机床导轨间的不对正误差。
光栅尺和安装板间的横向和轴向误差允许 为± 0.2 mm至± 0.3 mm,具体数值与光 栅尺型号有关。

Heidenhain光栅尺LC195型号LC195F/LC195M/LC195S技术参数:
| 技术参数 | LC 195 F | LC 195 M | LC 195 S |
| 测量基准 | DIADUR带jue对和增量刻轨的玻璃光栅,栅距20 μm | ||
| 线性膨胀系数 | αtherm ≈ 8 x 10–6 K–1 | ||
| 精度等级* | ± 3 μm,大测量长度至3 040 mm;± 5 μm | ||
| 测量长度ML* | 140 240 340 440 540 640 740 840 940 1 040 1 140 1 240 1 340 1 440 | ||
| 单位mm | 1 540 1 640 1 740 1 840 2 040 2 240 2 440 2 640 2 840 3 040 3 240 3 440 3 640 3 840 | ||
| 4 040 4 240 | |||
| 功能安全* | – | 选装项1 | |
| 接口 | 发那科串行接口αi接口 | 三菱高速接口 | DRIVE-CLiQ |
| 订购标识 | Fanuc05 | Mit03-04 | DQ01 |
| 分辨率 | αi接口/α接口 | ||
| ± 3 μm时 | 0.00125 μm/0.010 μm | 0.001 μm | |
| ± 5 μm时 | 0.0125 μm/0.050 μm | 0.010 μm | |
| 诊断接口 | 数字 | ||
| 电气连接 | 单独适配电缆(1 m/3 m/6 m/9 m),可由读数头两端出线 | ||
| 电缆长度 | ≤50 m | ≤ 30 m | ≤ 30 m2) |
| 供电电压 | 3.6 V至14 V DC | 10 V至28.8 V DC | |
| 功率消耗(大值) | 3.6 V:≤ 1.1 W;14 V:≤ 1.3 W | 10 V:≤ 1.5 W;28.8 V:≤ 1.7 W | |
| 电流消耗(典型值) | 5 V:140 mA(无负载) | 24 V:46 mA(无负载) | |
| 运动速度 | ≤ 180 m/min | ||
| 要求的移动力 | ≤ 4 N | ||
| 振动 55至2 000 Hz | 尺壳:≤ 200 m/s2 (EN 60 068-2-6) | ||
| 影响 | 读数头:≤ 200 m/s2 (EN 60 068-2-6) | ||
| 冲击11 ms | ≤ 300 m/s2 (EN 60 068-2-27) | ||
| 加速度 | 沿测量方向≤ 100 m/s2 | ||
| 工作温度 | 0 °C至+50 °C | ||
| 防护等级EN 60 529 | 如果符合安装说明要求为IP 53,如果接入DA 400的压缩空气为IP 64 | ||
| 重量 | 0.55 kg + 2.9 kg/m测量长度 | ||
* 请订购时选择 1) 有关尺寸和技术参数,参见单独的“产品信息”文档。
2) 今后将提供更长电缆
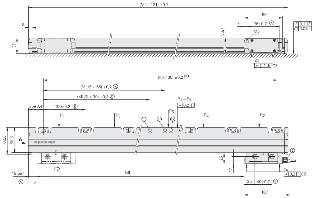
Heidenhain光栅尺LC195型号LC195F/LC195M/LC195S产品尺寸:
![]()
![8T5Z_6MDJD]DCKH}9XYBKXR.png 8T5Z_6MDJD]DCKH}9XYBKXR.png](/uploadfile/202205/a92febcb0cca058.png)
![I{9{8JHU9CG%@83]KWC95{A.png I{9{8JHU9CG%@83]KWC95{A.png](/uploadfile/202205/a79ed7c2f784ba2.png)
Heidenhain光栅尺LC195型号LC195F/LC195M/LC195S
网站客服咨询客服
热线电话:
13962107506
