封闭式绝对线性标尺ABS AT1143产品概要书
2.特点
(1)最适于加工中心等NC机床的耐环境性优良的电磁感应式ABS AT标尺
■优良的耐污性能
·采用高耐污性能的电磁感应式传感器,针对线性标尺上的污垢实现优良的耐污性能防尘/■防水性能的提高
·改进了外框形状/开口位置、采用新材料防尘橡胶,实现优越的防尘/防水性能
(2)三菱电机株式会社高速串联接口的对应
(型号)
适用系统 | 标尺符号 | |
三菱电机株式会社 | 控制装置MITSUBISHI CNC 系列 | ABS AT1143 |
3.构成及其规格
3—1.构成
本产品的结构如下图所示。
通过有效长度、信号电缆、I/F进行规格的选择。
3-2.主要规格
项目 | 内容 | |
检出方式 | 电磁感应式 | |
有效长度L0(mm) | 24种: | |
外观·安装尺寸 | 请参考[4.外观-安装尺寸图』。 | |
截面尺寸 | 85×37(mm) | |
电缆构成 | 请参考『3-3.电缆构成』。 | |
位置数据 | [o』的位置 | 参照图3-2 |
分辨力 | 0.05um | |
指示精度(20°℃) | 有效长度L=140~2040mm : (3+5L/1000)um | |
使用温度·湿度范围 | 0~50℃ 20~80%RH (非结露) | |
保存温度·湿度范围 | ‘-20~70℃ 20~80%RH(非结露) | |
供给电源电压 | DC5V±10% | |
最大消耗电流值 | 290mA (Max) | |
信号电缆长度 | 可至29m(信号电缆+反馈电缆的合计) | |
最大响应速度 | 3m/sec | |
热膨胀系数 | ≈8×10 R rc | |
耐振动特性(55~2000Hz) | ≤196m/s2(20G)※无报错情况下 | |
耐冲击性(11ms 1/2sin) | 有效长度LO=140~~2040mm:≤343m/s2 (35G)※无报错情况下 | |
串联接口 | 三菱电机株式会社伺服放大器 | |
保护等级 | 相当IP55(无空气供给的情况) | |
对应规格 | EMC规格:CE市场对应 | |
注)规格可能会有变更
注1:ABS数据位置
标尺绝对值数据在下图位置关系时为『0』。
另外,在下图的位置关系中读数头的向右移动时,输出的序列数据增加(+位置的计数)。
3—3.电缆构成
电缆构成如下图所示。
信号电缆通过标尺本体上的读数头左右任意一端的接口与电装部连接。请依据所需电缆的长度、输出的接口来进行信号电缆规格的选择。
项目 | 规格 |
电缆长度 | 1m/3m/6m/9m/12m (12m 仅适用散线规格) |
电缆材料 | PVC套管φ6.5无导管 |
输出接口 | ①散线规格 |
(输出信号)
①散线规格
线色 | 信号 | 线色 | 信号 |
茶 | SD | 紫 | — |
红 | *SD | 灰 | — |
橙 | RQ(REQ) | 白 | +5V |
黄 | *RQ(REQ) | 黑 | GND |
绿 | — | 屏蔽线 | F.G. |
蓝 | — |
②三菱电机接口规格
脚位 | 信号 | 脚位 | 信号 |
1 | 5V | 7 | DT |
2 | GND | 8 | DT |
3 | RQDT | 5,6,9,10 | 未使用 |
4 | RQDT |
(电缆规格)
①散线规格
读数头侧(特制)
防水规格
Code No. | Model | 电缆长度(m) |
06AFG596-1 | AT1100F/M电缆散线 1m | 1 |
06AFG596-3 | AT1100F/M电缆散线 3m | 3 |
06AFG596-6 | AT1100F/M电缆散线 6m | 6 |
06AFG596-9 | AT1100F/M电缆散线 9m | 9 |
06AFG596-12 | AT1100F/M电缆散线 12m | 12 |
②三菱电机接口规格
读数头侧(特制)
NC侧(Fl-20)
防水规格
非防水规格
Code No. | Model | 电缆长度(m) |
06AFF957-1 | AT1100M 电缆MDS-D 1m | 1 |
06AFF957-3 | AT1100M 电缆MDS-D 3m | 3 |
06AFF957-6 | AT1100M 电缆MDS-D 6m | 6 |
06AFF957-9 | AT1100M 电缆MDS-D 9m | 9 |
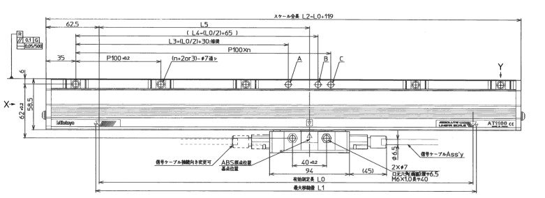
4.外观·安装尺寸图
AT1143安装尺寸表
Code No. | Model | L0 | L1 | L2 | L3 | L4 | L5 | 穴数 |
559-100-43 | AT1143-140 | 140 | 148 | 259 | 100 | 135 | 90 | 2 |
559-101-43 | AT1143-240 | 240 | 248 | 359 | 150 | 185 | 147.5 | 3 |
559-102-43 | AT1143-340 | 340 | 348 | 459 | 200 | 235 | 190 | 4 |
559-103-43 | AT1143-440 | 440 | 448 | 559 | 250 | 285 | 247.5 | 5 |
559-104-43 | AT1143-540 | 540 | 548 | 659 | 300 | 335 | 290 | 6 |
559-105-43 | AT1143-640 | 640 | 648 | 759 | 350 | 385 | 347.5 | 7 |
559-106-43 | AT1143-740 | 740 | 748 | 859 | 400 | 435 | 390 | 8 |
559-107-43 | AT1143-840 | 840 | 848 | 959 | 450 | 485 | 447.5 | 9 |
559-108-43 | AT1143-940 | 940 | 948 | 1059 | 500 | 535 | 490 | 10 |
559-109-43 | AT1143-1040 | 1040 | 1048 | 1159 | 550 | 585 | 547.5 | 11 |
559-110-43 | AT1143-1140 | 1140 | 1148 | 1259 | 600 | 635 | 590 | 12 |
559-111-43 | AT1143-1240 | 1240 | 1248 | 1359 | 650 | 685 | 647.5 | 13 |
559-112-43 | AT1143-1340 | 1340 | 1348 | 1459 | 700 | 735 | 690 | 14 |
559-113-43 | AT1143-1440 | 1440 | 1448 | 1559 | 750 | 785 | 747.5 | 15 |
559-114-43 | AT1143-1540 | 1540 | 1548 | 1659 | 800 | 835 | 790 | 16 |
559-115-43 | AT1143-1640 | 1640 | 1648 | 1759 | 850 | 885 | 847.5 | 17 |
559-116-43 | AT1143-1740 | 1740 | 1748 | 1859 | 900 | 935 | 890 | 18 |
559-117-43 | AT1143-1840 | 1840 | 1848 | 1959 | 950 | 985 | 947.5 | 19 |
559-118-43 | AT1143-2040 | 2040 | 2048 | 2159 | 1050 | 1085 | 1047.5 | 21 |
559-119-43 | AT1143-2240 | 2240 | 2248 | 2359 | 1150 | 1185 | 1147.5 | 23 |
559-120-43 | AT1143-2440 | 2440 | 2448 | 2559 | 1250 | 1285 | 1247.5 | 25 |
559-121-43 | AT1143-2640 | 2640 | 2648 | 2759 | 1350 | 1385 | 1347.5 | 27 |
559-122-43 | AT1143-2840 | 2840 | 2848 | 2959 | 1450 | 1485 | 1447.5 | 29 |
559-123-43 | AT1143-3040 | 3040 | 3048 | 3159 | 1550 | 1585 | 1547.5 | 31 |
网站客服咨询客服
热线电话:
13962107506
